как построить своими руками, пошаговая инструкция
Далеко не всегда получается обзавестись надежным кирпичным или бетонным гаражом. Щитовые или каркасные строения не хуже других способны обеспечить безопасность и сохранность автомобиля, оградить от воздействий внешней среды. Каркасная конструкция гаража в равной степени обладает и достоинствами, и недостатками. Какими, станет известно далее.
Виды каркасных гаражей
Как и дома, гаражные строения подразделяются на сложенные из камня, возведенные из стеновых панелей и облегченные, щитовые или каркасные. Последние не требуют устройства мощного фундамента, дешевле в строительстве. Каркасный домик – не значит карточный: это серьезное, долговременное сооружение, предназначенное для длительной эксплуатации.

По виду каркаса гаражи бывают металлические и деревянные. По функциональному назначению – объединенные с мастерской, на одну и 2 машины. В такой гараж можно, не опасаясь, поставить автомобиль, мотоцикл, пользоваться им, как «настоящим». Благодаря прочному несущему каркасу здание выдерживает значительные нагрузки, рассчитано на длительный срок службы.
Преимущества и недостатки
Каждая технология имеет свои плюсы и минусы. Каркасные гаражи не стали исключением, к ним это относится так же, как и к другим зданиям.

Главные преимущества заключаются в следующем:
- быстрота возведения;
- упрощенная конструкция фундамента;
- малый вес, возможность сборки без применения грузоподъемных механизмов;
- дешевизна строительства в целом в сравнении с капитальными сооружениями.
Но, к сожалению, оборотной стороной экономичности, легкости постройки является ее низкая, по отношению к кирпичу или бетону, прочность, посредственные теплоизоляционные показатели. Дерево обязательно обрабатывается специальным составом, во избежание развития гнили и разрушения.
Если других вариантов нет, то остается выбрать каркасный гараж. Тем более, что он не так уж и плох: его можно утеплить, защитить от воздействия атмосферы, сделать настоящим домом для автомобиля.

Чертеж каркаса будущего гаража
Без проекта, составления подробной схемы с указанием размеров гаража, толщины стен, глубины заложения фундамента стройка не начнется. К делу следует подойти серьезно: несмотря на облегченную конструкцию, гараж обладает определенным весом, просто на грунт его ставить нельзя. Все узлы, детали каркаса стойки, балки рассчитываются или выбираются типовыми, после уточнения нагрузок.
Для металлического каркаса на стадии проектирования потребуется назначить тип сборки – сварка, на болтовых соединениях или комбинированная. Она определит трудоемкость и конкретную конфигурацию остова. Деревянные детали традиционно скрепляются гвоздями, стяжками, скобами. При отказе от «глубокого» проектирования, сборочной схемы необходимо составить хотя бы пошаговую зарисовку – с ней будет проще и быстрее выполнять сборку.

Некоторые источники умаляют роль чертежей и эскизов при строительстве гаража. Между тем, перенося свои идеи на бумагу, проще контролировать процесс, ведь в голове всего не удержишь, а любая мелочь, упущенная на начальной стадии, может изменить ход работ, заставить пойти на ненужные траты или замену материалов.
Фактически, от заказчика нужно понимание – каковы размеры будущего гаража, его длина/ширина/высота, где располагаются ворота и их тип (сдвижные, распашные двухстворчатые, с электроподъемником и так далее).

Инструменты и материалы
Для возведения гаража из дерева, то есть с несущим каркасом из этого материала, понадобятся, соответственно, брус – сплошной или клееный из досок, а также некоторое количество плит ОСБ для обшивки. Дальнейшие действия зависят от конструкции гаража, типа кровли, габаритов.
Из инструментов обязательно будут нужны:

- Молоток.
- Уровень.
- Отвес.
- Рулетка.
- Электро- или аккумуляторная дрель.
- Угловая шлифмашина с насадкой для резки дерева (опционально).
Конкретные действия сборщиков зависят от степени подготовленности к монтажу – древесина уже размечена, порезана на детали (стойки, балки, подкосы) или все придется делать «с нуля». В первом случае время на возведение здания значительно сокращается.

Основные этапы работ, пошаговая инструкция
Чтобы быстро возвести своими собственными руками прочный, надежный гараж, для удобства самих работников понадобится разбить весь цикл на отдельные операции. Опытные строители знают, что основа успеха заключена в тщательной подготовке, планировании.
Поэтому в процесс возведения здания обязательно входят:
- Подготовительные работы. Расчеты, разметка и порезка деталей, комплектация крепежом, устройство фундамента – все это включается в начальную стадию. Пропускать ее категорически нельзя, это нарушит естественный ход строительства. Исключением является случай, когда гараж собирают на заранее подготовленном основании из предварительно сформированного набора элементов каркаса.
- Монтаж конструкций, сборка разрозненных деталей в единое целое. По завершении процесса постройки производят обшивку каркаса стеновыми панелями, чтобы гараж принял вид готового здания.
- Устройство крыши. Сюда относятся работы по покрытию одно- или двускатной кровлей, утепление потолка/стен (по желанию заказчика).
- Заключительная фаза – отделка (покраска, обшивка сайдингом), монтаж всех дополнительных систем, включая навеску ворот.

Подготовка основания
Чтобы сделать прочный, надежный гараж, понадобится подготовить основу, которая воспринимает нагрузки от здания, передает их на грунт. Это плитный фундамент и соответствующие земляные работы, выполненные до начала его устройства. К ним относятся выемка «лишней» земли, засыпка песчаной подушки и гравийной подготовки, их трамбовка.
Неплохо бы заранее выяснить, к какому типу принадлежат грунты на участке застройки – просадочные, насыпные, насколько глубоко проходят водоносные горизонты. Эти меры избавят от последующих проблем с просадками, замачиванием фундамента, оседанием здания.

Фундамент
Постройку любого объекта традиционно начинают с закладки фундамента. От наличия данного элемента зависит устойчивость будущего здания, его способность противостоять внешним нагрузкам и атмосферным воздействиям без каких-либо повреждений.
Для каркасных строений, с их облегченными конструкциями и сниженным весом на основание, сооружают плитный фундамент небольшой толщины.
При этом обязательно применяется армирование сеткой или стержнями, увязанными в единую систему, выдерживаются сроки схватывания бетона. Нагружать основание до окончания данного периода запрещено во избежание появления трещин, просадок.

Возведение каркаса
Деревянный каркас отличает простота сборки – это одно из ключевых преимуществ подобных сооружений. Начинают сборку с установки угловых стоек, постепенно переходя к средним и перевязывая их между собой балками.
Основное правило: конструкция должна обладать достаточной собственной жесткостью, для этого применяются связи в 2 уровнях (снизу и сверху), а также подкосы. Периодически контролируют вертикальность/горизонтальность элементов, пользуясь уровнем и отвесом.
На крепеже экономить не нужно, это приведет не к удешевлению гаража, а к снижению его жесткости, долговечности.

Строительство крыши
Когда закончен монтаж каркаса, сооружение коробки будущего здания, переходят к сооружению крыши. Кровля может быть плоской, односкатной, сложной формы – зависит от того, какая идея придет в голову заказчику, и что именно он захочет реализовать на практике.
Не рекомендуется излишне усложнять конструкцию покрытия, отступая от простых (и функциональных) решений в сторону дизайнерских, усложненных. Вполне достаточным будет создать одно- или двухскатную кровлю с покрытием из металочерепицы, армированного пластика – так, чтобы осадки не проникали внутрь, там было тепло и сухо.

Отделка
Гараж с обшивкой фасада сайдингом, простым ОСБ с последующей покраской приятным для глаза колером выглядит гораздо привлекательнее, чем без нее. И на этом этапе лучше не «заморачиваться» с особенными материалами, красками и технологиями. Ведь это все-таки гараж, а не загородный дом. Для него функциональность – прежде всего.
Достаточно будет выбрать лакокрасочное покрытие неброского цвета, использовать пластиковую вагонку, которая не боится холода и влаги, хорошо защищает конструкции от внешней среды.
Если есть желание сделать теплый гараж, на данном этапе самое время его реализовать. При этом не забывают о гидроизоляции: у древесины и утеплителя разные коэффициенты теплопроводности, понадобится слой пленки между ними, чтобы не возникло мостиков холода, очагов конденсации влаги.

Расчет стоимости
На смету затрат повлияют стоимость материалов – дерева, крепежа, арматуры. Это неизбежно. Возможно, добавятся транспортные услуги на доставку древесины или заказ бетонной смеси для заливки фундамента, подвоз щебня.
В целом, постройка обойдется значительно дешевле капитального гаража, к тому же рабочая сила будет бесплатная, благодаря возведению здания своими руками. С целью экономии строительство можно растянуть по времени (в разумных пределах), постепенно накапливая материалы и занимаясь возведением такого нужного, недорогого и чрезвычайно привлекательного внешне гаража.
garazhyk.ru
Как построить каркасный гараж пошагово. |
Каркасный гараж – один из самых простых вариантов строительства подсобного помещения для хранения автомобиля. Он не только прост технически, но также обходится дешевле кирпичных или бетонных стен. Ценовая и техническая доступность – вот главные преимущества каркасных строений. Как построить каркасный гараж самостоятельно? Какие особенности важно учесть для надёжного и правильного строительства?
Виды каркаса
Каркасные гаражи могут быть выполнены из различных материалов – дерева, OSB, шиферных асбестоцементных листов, пластикового сайдинга, металлических панелей. В зависимости от материала каркасных элементов и стен, гаражи делят на следующие виды:
- Деревянные строения – в них в качестве опор чаще используют деревянные балки или брёвна, а в качестве стеновой обшивки – обрезные и необрезные доски, вагонку, панели из древесных материалов. Как правило, деревянные коробки возводят при работе с «тем, что есть», когда постройка строится из подручных средств, имеющихся в наличии – деревянных панелей, досок. Деревянные стены требуют качественной защиты от влаги и намокания. Их необходимо ежегодно красить или покрывать лаком. А также периодически менять подгнившие испорченные доски, ставить взамен новые деревянные панели.
- Металлические – наиболее частные виды каркасных строений для хранения авто. В них в качестве опор используются металлические углы, швеллера, балки. В качестве стеновой обшивки – металлические листы. Это могут быть профилированные листы металла или ровный прокат. Для того чтобы построить каркасный гараж своими руками из металла, необходимо иметь в наличии сварочный аппарат и уметь работать с дуговой сваркой.
На заметку
Возможны смешанные варианты. Деревянные балки могут быть опорой для пластиковых панельных стен. Он может быть обшит асбестоцементными листами (плоским шифером).
Подробнее о строительстве гаража каркасного из разных материалов – на видео.
Строительство каркасного гаража
Чертёж каркаса и будущей постройки необходим начинающим строителям. Он также нужен для расчётов расхода строительных материалов – опорных балок, стеновой обшивки, кровельных панелей. Можно пользоваться готовыми чертежами гаражей, типовыми решениями, которые приводятся в различных рекомендациях по строительству каркасных гаражей своими руками, в пошаговых инструкциях. Или обратиться к специалистам и заказать расчёт и чертёж вашего гаража с индивидуальными размерами, требуемой конструкцией.
Развернутый чертеж.В готовом чертеже должен быть рисунок-эскиз будущего каркаса.
Эскиз-рисунок каркаса.Также должен быть чертёж с указанием размеров всех каркасных элементов, расстояния между ними и способов крепления между собой. Также в чертеже указывается вид и размеры панелей стеновой обшивки, и способы её крепления к стойкам каркаса. Оговаривается материал размер кровельных листов, а также шаг-расстояние кровельных лагов. Правильно составленный чертёж со всем размерами может использоваться в качестве инструкции к строительству гаража.
Фундамент
Строительство каркасного гаража начинается с проектирования. А работы по его возведению начинаются с закладывания фундамента. Стены будущего гаражного строения могут быть лёгкими и холодными, но основание должно быть глубоким (при наличии смотровой ямы) и прочным.
Чаще всего в качестве основы под каркасный гараж используют фундаментную плиту. Она имеет достаточные показатели прочности, и укладывается в короткие сроки. Однако при этом отличается весом и требует работы погрузочно-разгрузочной техники. При использовании подъёмного крана плита укладывается на место будущего подсобного строения в течение часа.
Плита фундамента.Перед укладыванием плиты проводят подготовительные работы – разравнивают грунт, при необходимости делают небольшое углубление или наоборот, приподнимают будущее, выполняя насыпь. При укладывании бетонной плиты в яму её дно предварительно отсыпают слоем песка – для отвода грунтовой воды, в качестве дренажного слоя. Если же плита укладывается поверх грунта без заглубления, или на возвышенном месте, то достаточно разровнять и утрамбовать землю.
Готовую фундаментную плиту используют в том случае, если под гаражом нет необходимости сооружать смотровую яму. Если же есть необходимость в традиционной гаражной яме, то сначала сооружают её, и только после – приступают к фундаменту, стенам и крыше.
Яма для гаража обустраивается в виде грунтового заглубления необходимой длины, ширины и глубины. Её стены выкладываются кирпичом, или отливаются бетоном, дно также выкладывают небольшой бетонной плитой. После обустройства ямы – приступают к заливке основной фундаментной плиты.
Монолитный фундамент со смотровой ямой.Для подготовки грунта к заливке дно будущей плиты отсыпают песком. После этого песок проливают водой и трамбуют. Поверх – выкладывают каркас будущего фундамента – из металлической арматуры, сетки, проволоки, по периметру фундамента сооружают опалубку. После – льют бетон.
На застывание фундаментной плиты дают месяц. Наступать на плиту основания можно уже через сутки. Бетон будет достаточно прочным, чтобы выдержать вес человека и проводить дальнейшие строительные работы. А вот ставить автомобиль можно только после набора окончательной прочности – через 28 календарных дней.
На заметку Если работы выполняются в жару, то поверхность бетона накрывают мокрой холстиной, для того чтобы предупредить чрезмерное её высыхание и растрескивание плиты из-за быстрого испарения влаги с его поверхности. Периодически, по мере высыхания, холст смачивают водой, для поддержания влаги в поверхностном слое бетона.
Поверхность гаражной плиты должны быть влагостойкой. При постановке машины с её колёс и днища будет сливаться вода. Проникая в поры бетона, при замерзании капли влаги будут расширять поры, инициировать растрескивание поверхности. Поэтому перед заливкой бетона в смесь добавляют влагостойкие компоненты типа Пенетрон, Аквастоп. При установки готовой фундаментной плиты её поверхность пропитывают водостойкой смесью.
Сборка каркаса
Сборка каркаса под гараж начинается с обустройства вертикальных опор. При этом опоры могут бетонироваться в плиту фундамента в процессе заливки, или могут быть прикреплены к бетонному основанию на анкерные соединения, вместе с нижней обвязкой. Наиболее качественный и надёжный вариант – бетонирование стоек с заглублением в фундаментную плиту и грунт. Его используют для строительства на открытых местах с большой ветровой нагрузкой. Он требует сооружения ямы для каждой опоры и её отдельное цементирование.
Более простой и доступный вариант – использование нижних лаг и крепёжных элементов. В этом способе вертикальная опора не заглубляется в грунт, а крепится с помощью металлического уголка к бетонному полу или деревянной балке, которая выполняет роль нижней обвязки. Такую балку предварительно крепят к плите фундамента, и после – устанавливают на неё опоры каркаса.
Поверх вертикальных несущих опор кладут верхние горизонтальные лаги. На них – сооружают перекрытия под крышу. Сама крыша сооружается из кровельных листов, которые укладывают поверх лаг перекрытия (элементов кровельного каркаса). Нижний ряд кровли укладывается с небольшим свешиванием.
Его край должен выходить за периметр строения на 50-60 см. Такой свес крыши предупреждает излишнее намокание стен и этим обеспечивает их сухость, долговечность и отсутствие влаги, плесени в гараже. Минимальный размер карниза, до полуметра, гарантирует защиту стен от слива сточной дождевой воды.
На заметку Сборка каркаса с помощью резьбовых элементов обеспечивает возможность демонтажа гаража и его переустановки на другом месте. Каркасный гараж при необходимости может быть разобран, если крепления будут выполнены с помощью болтов, шурупов. Сборка на болты и шурупы обеспечивает возможность демонтажа стен, крыши и каркаса гаражного строения.
Подробнее о соединении опор каркасного гаража – на видео.
Виды крыш
Кровля гаража может быть выполнена в виде одно- или двускатной конструкции. Для выполнения работ своими руками при минимальном строительном опыте проще соорудить крышу односкатной. В таком случае слив дождевой воды будет осуществляться в одну сторону гаражного строения. Для того чтобы равномерно распределить слив на обе стороны гаража, конструкцию крыши делают двускатной.
Односкатная кровля.Для сооружения односкатной крыши стены гаража выполняют разными по высоте. Одну стену поднимают выше другой на 300, 400 и более мм. Разница в высоте стен определяет угол наклона крыши, который, в свою очередь, зависит от количества снеговых осадков в зимний период года.
На заметку Угол наклона кровли определяется количеством осадков в зимнее время. Чем больше снега, тем больше должен быть угол ската крыши. Для регионов с умеренным климатом и средним количеством снежных осадков угол наклона кровли выбирают 20-25°. Для тёплых зим с небольшим количеством снега достаточно 10-15°.
При разнице высоты стен 300-400 мм и ширине гаража 3 м кровля получает наклон на 10-15°. Что достаточно для скатывания снега в регионах с умеренным количеством осадков. Для постройки гаража в зонах с большими снеговыми осадками угол наклона кровли делают большим, до 30°.
Односкатная крыша сделанная по каркасной технологии.После сооружения каркаса приступают к навешиванию кровельных элементов. Пошаговая инструкция к каркасному гаражу регламентирует правила монтажа кровельных панелей. Работу начинают с укладывания нижнего ряда листов кровли. Поверх – кладут листы следующего ряда. Последним укладывают верхний ряд, расположенный вдоль приподнятой стены. Таким образом, листы кровли перекрывают друг друга и не допускают попадания влаги внутрь гаражного пространства во время дождя, снегопада.
Для сооружения двускатной крыши каркас собирают из треугольных каркасных элементов. Их размер определяется шириной гаража и углом наклона крыши. Треугольные элементы собирают на земле и после – поднимают на крышу. Здесь их устанавливают на верхней обвязке стен. Поверх готового кровельного каркаса – укладывают шифер или металлический профиль.
Отделка
Внутренняя отделка подсобного помещения часто отсутствует вовсе. Особенно если гараж строят без утепления. Реже, при обустройстве тёплого гаража, возникает необходимость закрыть изолирующий материал от внутреннего пространства. В таком случае, внутренняя отделка становится необходимой и обязательной.
К материалу внутренней обшивки стены не ставят требования влагостойкости. Поэтому часто используют панели из отходов деревянного производства (OSB, ДСП) или листы фанеры. При необходимости, выполняют встроенные в стену полки, шкафы, крепя их к опорам гаражного каркаса.
Утепление
Необходимость утепления встаёт тогда, когда зимой в гараже необходимо проводить какие-либо работы. Или когда планируется обустройство тёплого гаража с возможностью сушить днище машины после езды в холодное и мокрое время года.
Утепление своими руками.Утепление гаража отличается от аналогичных работ в жилых строениях выбором теплоизолятора. Если в жилых помещениях важно обеспечить здоровый микроклимат, обустроить естественную циркуляцию воздуха, то в гаражное утепление выполняется проще. Можно обойтись принудительной периодически работающей вытяжкой. А также использовать менее полезные и более дешёвые утеплители – пенопласт и стекловату.
При утеплении стекловатой её располагают между вертикальными стойками. Благодаря сжимаемости она легко удерживается в распоре. Толщина ватного утеплителя определяется уровнем зимних температур. Для жилых строений при средней температуре -10°C выбирают толщину ватного утепления до 100 мм. Для гаражей и других подсобных помещений выбирают толщину до 50 мм.
На заметку
При утеплении стекловатой важно учесть, что со временем материал может просесть. В местах провисания стекловаты будут формироваться «мостики холода», через которые будет «утекать» тепло.
Утепление пенопластом не имеет недостатков использования стекловаты. Пенопласт со временем не оседает и не теряет свою форму. При этом он достаточно недорого стоит, что делает его популярным материалом каркасного гаражного утепления.
Если жилые помещения не рекомендуют изолировать пенополистиролом из-за возможных вредных испарений, то для гаражного пространства этот вид утеплителя является оптимальным. Он недорого обходится, легко монтируется и длительно работает в качестве теплоизолятора, удерживая тепло внутри строения.
При монтаже пенопласта между стойками каркаса образуются щели. Это объясняется с жёсткостью пенопластовых плит. Образовавшиеся монтажные щели задувают пеной.
Виды гаражных ворот
Каркасные гаражи на фото отличаются конструкцией въездных ворот. Традиционно ворота гаража выполняют распашными двустворчатыми. Однако возможны и другие конструкции. Какими могут быть гаражные ворота?
Ворота.Распашные – традиционная форма ворот в виде дверей, которые распахиваются, открываются наружу помещения. Наиболее простая и доступная в строительстве своими руками конструкция. Открывается в ручном режиме.
Раздвижные – усовершенствованная форма въезда в гараж, которая может быть дополнена автоматическим устройством. В таком варианте дверь гаража отъезжает по рельсам в сторону при подаче сигнала с дистанционного устройства.
Также возможны подъёмно-роллетные конструкции, однако их стоимость значительно выше, поэтому они реже используются в каркасных конструкциях.
1karkasnydom.ru
Как построить каркасный гараж своими руками — пошаговая инструкция +Видео
В условиях российских климатических зон гараж для автомобиля не роскошь, а необходимость. От перепадов влажности и температуры в первую очередь страдает лакокрасочное покрытие машины. Простым решением этой проблемы станет каркасный гараж своими руками.
Кроме того, в отличие от возведения кирпичного гаража, постройка подобного сооружения обойдётся весьма бюджетно.
Особенной популярностью каркасные гаражи пользуются у автовладельцев, которые много большую часть года проводят на даче.
Общие сведения
Строительные технологии не стоят на месте — появляется всё больше новых материалов, упрощающих работу мастеров. Так большие и маленькие здания, в основе которых заложен деревянный или металлический каркас, стали пользоваться большим спросом.
Какие преимущества имеет гараж по каркасной технологии перед капитальным:
- — скорость возведения не идёт ни в какое сравнение с традиционной кирпичной кладкой или монолитом
- — простота монтажа — имея в наличии точный чертёж, с постройкой справится даже не опытный строитель
- — низкая теплопроводность — качественное утепление обеспечит комфортную температуру внутри гаража
- — долговечность и лёгкость — каркасно щитовой гараж не обладает значительной массой, поэтому для его сооружения не нужен сложный фундамент
- — цена — себестоимость подобных конструкций очень низкая. К тому же, если вы решили построить каркасный гараж своими руками, то не придётся нести дополнительные расходы на оплату труда наёмных работников.
ЭТО ВАЖНО: Основой для каркаса могут послужить не только детали из дерева, но и металлические трубы.
Как построить бюджетный каркасный гараж. Пошаговая инструкция
Строительство по каркасной технологии предполагает несколько этапов:
- — подготовительный
- — заливка фундамента
- — возведение стен
- — устройство крыши
- — утепление внутри и снаружи
- — установка гаражных ворот
Подготовительный этап
На данном этапе необходимо выбрать место под быстровозводимый гараж, определиться с проектом и закупить необходимые строительные материалы и оборудование.
Для постройки гаража лучше всего подойдут открытые места с гладким рельефом. Изучая проекты, обращайте внимание на размер будущего строения — 5х8 или 7х10 — выбор зависит от имеющейся площади на участке.
ЭТО ВАЖНО: К воротам гаража в частном доме нужно обустроить короткий и свободный подъезд. Также чертежи отличаются типом крыши. Гараж может быть выполнен как с односкатной крышей, так и с двускатной.
Для «скелета» постройки предпочтительнее использовать деревянный брус либо направляющие из профильной трубы.
Заливка фундамента
В начале следует обозначить место 10*10 для будущего гаража колышками и шпагатом. По периметру этой зоны с поверхности земли снимается ровный слой дёрна, убирается вся растительность. Площадка тщательно разравнивается и утрамбовывается. Затем поверхность засыпается гравием или смесью песок+гравий и обрабатывается виброплитой.
ЭТО ВАЖНО: Можно утрамбовать почву и вручную, используя широкую доску или кусок фанеры.
Следующий шаг в устройстве фундамента — это выбор его типа. Для того, чтобы построить лёгкий каркасный гараж, подойдёт один из вариантов:
- Монолитный
- Столбчатый
- Ленточный
Монолитный фундамент наиболее надёжный из всех, но и более трудоёмкий и дорогой в отличие от столбчатого и ленточного. Для того, чтобы получить качественную и долговечную плиту под каркасный гараж, потребуется грамотное армирование основания. К тому же монолитный фундамент сохнет довольно долго: окончательное застывание наступает примерно через месяц.
Столбчатый фундамент обычно возводят для хозпостроек типа бань и сараев, так как эти сооружения более лёгкие по массе. В случае необходимости можно адаптировать столбчатый фундамент и под возведение гаража.
Ленточный фундамент — это наиболее подходящая основа для того, чтобы построить каркасный гараж. Его заливка своими руками не составит сложностей.
ЭТО ВАЖНО: Перед началом работ по устройству фундамента любого типа изучите инструкцию, фото и видео материалы и чётко соблюдайте правила.
Как сделать ленточный фундамент под каркасный гараж?
Для работ по разметке понадобятся следующие инструменты: уровень строительный, лазерный дальномер, отвес, угольник столярный, шпагат капроновый, колья.
Начинаем разметку от одного из углов будущего гаража. Расстояния отмеряем в соответствии с чертежом, заложенным в проект каркасного гаража.
Вбиваем колышек и выравниваем его по отвесу. В противоположном углу вбиваем второй колышек. Протягиваем капроновый шпагат между ними. Далее с помощью угольника, находим угол 90 градусов и под ним тянем шпагат к третьему и четвертому колышку. Завершив обвязку, проверяем все углы — они должны быть прямыми (90 градусов).
Затем необходимо выкопать траншею под заливку фундамента. Рекомендованная глубина закладки не более 50 см. Бортики канала выравниваются штыковой лопатой, дно тщательно утрамбовывается.
ЭТО ВАЖНО: Приступайте к закладке фундамента в солнечную погоду. Мокрый грунт может осыпаться, и вам придётся переделывать работу.
Далее начинается подготовка опалубки. Из досок и кусков фанеры сбивается или собирается с помощью саморезов основная конструкция и опускается в траншею. Стенки опалубки должны плотно соприкасаться со стенками вырытого канала. Дно засыпается песком или смесью песка и гравия. Далее в траншею опускается металлический каркас из арматуры.
Подготовленный цементный аккуратно заливается в опалубку. Чтобы выпустить возможные пузыри воздуха, следует проткнуть не застывший бетон в нескольких местах прутом арматуры.
Затем на бетон укладывается слой полиэтиленовой плёнки. Это поможет избежать растрескивания поверхности.
ЭТО ВАЖНО: Первые дни следует поливать фундамент водой. Так он будет крепче.
После окончательного застывания поверхность фундамента гидроизолируют рубероидом.
Как сделать каркасный гараж. Возведение стен
Основа гаража формируется из деревянного бруса или металлопрофиля. На данном этапе необходимо приобрести:
- — брус 100*100 для обвязки и стоек
- — доски не менее 4 см для сборки стропильной системы
- — доску не менее 2 см для выполнения обрешётки
- — доски для укладки пола не менее 4 см толщиной
Перед использованием всё дерево обрабатывается антисептическим и огнезащитным составами, а также хорошо просушивается в тени.
Монтаж каркаса стен начинается с выполнения нижней обвязки. Для этого по внутреннему периметру будущей постройки укладывается брус 100*100 мм. Затем все детали соединяются по углам шпонками и врубкой.
Далее, в соответствии с проектом, устанавливаются и фиксируются нагелями и металлическими уголками основные вертикальные стойки. Шаг между ними не должен составлять меньше двух метров.
Затем из бруса формируется верхняя обвязка. Промежуточные стойки и перемычки фиксируются уголком и саморезами.
Перекрытие пола собирается в самый последний момент. Подготовленные 40 мм доски крепятся на нижнюю обвязку и черновой пол готов.
Как строится крыша каркасного гаража. Типы и пошаговая инструкция
Наиболее простыми типами крыши каркасных гаражей являются односкатная и двускатная. Пр самостоятельном монтаже специалисты рекомендуют строить каркасный односкатный гараж. Такая кровля не только проще возводится, но и обходится дешево. Кроме того, односкатная крыша обладает более высокой прочностью.
При монтаже крыши выполняются следующие шаги:
- — подготовка и установка стропильной системы
- — сборка обрешётки
- — укладка гидроизоляции
- — укладка кровельного материала
Стропильная система — это так называемый «скелет» крыши. Она принимает на себя всю нагрузку, начиная с массы кровельного покрытия и заканчивая весом слоя снега в зимнее время. Строительство стропильной системы — важнейший этап при возведении крыши. От качества сборки конструкции зависит время, которое вам прослужит каркасный гараж из бруса.
Обрешётка — опора для кровли. На неё ляжет гидроизоляция и материал внешнего покрытия крыши. Для сборки обрешётки разрешается использовать как обрезную, так и не обрезную доску.
Изоляция — слой материала, препятствующего попаданию влаги внутрь гаража.
Кровельный материал — укладывается поверх изоляции. Недорогой каркасный гараж обычно покрывают профнастилом, ондулином или гибкой черепицей.
Монтаж кровли начинается со сборки стропил.
ЭТО ВАЖНО: Выполняя расчёт количества балок помните, что расстояние между ними не должно превышать 1 метра.
Односкатный гараж
В случае с односкатной крышей стропила укладываются поперек каркаса, это сэкономит время при монтаже. После укладки балки крепятся к основанию уголками с саморезами или с помощью гвоздей.
Затем начинается сборка обрешётки. Если используется необрезная доска, то следует очистить её от остатков коры. После подготовки доски обрешётки укладываются поперёк стропил и фиксируются саморезами. Между элементами обрешётки не должны образовываться щели и зазоры.
Поверх обрешётки на каркасный гараж укладывается слой гидроизоляционного материала. Традиционно используется рубероид, либо специальная плёнка.
При гидроизоляции рубероидом, слои материала укладываются друг на друга внахлёст. Величина нахлёста должна составить не менее 3-4 см. Затем материал прибивают к доскам обрешётки гвоздями.
Гидроизоляционная плёнка фиксируется строительным степплером со скобами.
После слоя изоляции устанавливается окончательное покрытие. Для каждого из вариантов свои правила укладки и эксплуатации. При укладке руководствуйтесь рекомендациями производителя выбранного кровельного материала.
Двухскатный гараж
Такую крышу смонтировать сложнее, но выбрав её хозяева получают дополнительное пространство для хранения — чердак. Общая цена гаража возрастёт примерно на 30 процентов в сравнении ценой за односкатный гараж. Двухскатную стропильную систему проще всего собрать на земле, а потом поднимать готовые фермы на верхнюю обвязку и крепить.
Строим деревянный пол в каркасном гараже. Обустройство пола в гараже выполняется после монтажа кровли. Так он не будет повреждён атмосферными осадками.
Традиционно строители рекомендуют использовать для пола нешпунтованную доску. Она образует естественные зазоры, благодаря которым под воздействием влажности и перепадов температур, пол не деформируется. Для фиксации половой доски на лаги применяют саморезы или гвозди.
domsdelat.ru
Строительство каркасного гаража
Уважаемые посетители сайта «В гостях у Самоделкина» из представленного автором мастер-класса вы узнаете и научитесь, как самостоятельно построить каркасный гараж и залить плиту фундамент. Каркасное строительство в наше время все более становится популярным, за счет своей простоты и легкости возведения, а так же важную роль играет скорость стройки.В основном каркасы собираются из металлического профиля и деревянного бруса, последний вариант самый простой, поэтому его и выбрал наш автор.
Так же под каркасное здание предварительно нужно выбрать тип фундамента, в основном применяются винтовые сваи и заливка сплошной армированной плиты из бетона. В данном случае выбрана плита, потому как на пол будут большие нагрузки, а так будет отличный бетонный пол для автомобиля.
И так теперь давайте рассмотрим все этапы строительства в деталях, а так же разберем что понадобилось автору в столь нелегком деле?
Материалы
1. брус
2. арматура
3. рубероид
4. ОСП
5. стеклопакет
6. петли
7.цемент
8. песок
9. гравий
10. доска 30 мм
11. проф-настил
12. утеплитель
13. изоляция
14. гвозди
15. шурупы
16. металлический уголок
Инструменты
1. бетономешалка
2. болгарка
3. дрель
4. лопата
5. молоток
6. электролобзик
7. шуруповерт
8. ножницы по металлу
9. рулетка
10 уровень
11. уголок
Процесс строительства каркасного гаража своими руками.
И так, первым делом автор дает нам ознакомится с чертежами и схемами будущего строения.
После заливки плиты, следует выждать как минимум 2-е недели, так же рекомендуется периодически смачивать фундамент, таким образом цемент наберет большую силу и прочность, что отлично скажется на характеристиках будущего гаража. И так, время прошло и плита хорошо застыла, автор постепенно начинает стройку, сначала расстилается гидроизоляция по всей плоскости данной поверхности.
Далее из бруса мастер начинает собирать каркас, в первую очередь торцы.
Делает горизонтальное соединение, а так же укосины.
Затем переходит к созданию стропильной системы гаража.Кроется кровля проф-настилом.
Стены каркасного строения отделываются плитами ОСП, так же сразу проделываются оконные проемы.
Стены утепляются минеральной ватой .
Навешиваются ворота, сделанные из того же ОСП
В оконные проемы вставляются стеклопакеты.
И вот собственно гараж готов, правда стоит снаружи еще чем нибудь облицевать, по типу профнастила или сайдинга. На первый взгляд гараж конечно больше похож на дом, кстати в гараже можно сделать неплохую комнату для отдыха, «но это уже совсем другая история».На этом заканчиваю статью. Спасибо за внимание!
Заходите в гости почаще, не пропускайте новинки в мире самоделок!
Статья представлена в ознакомительных целях!
Источник
Доставка новых самоделок на почтуПолучайте на почту подборку новых самоделок. Никакого спама, только полезные идеи!
*Заполняя форму вы соглашаетесь на обработку персональных данных
Становитесь автором сайта, публикуйте собственные статьи, описания самоделок с оплатой за текст. Подробнее здесь.usamodelkina.ru
Каркасный гараж своими руками — пошаговая инструкция с фото, схемами и видео
Построить каркасный гараж собственными руками под силу большинству автовладельцев. Достаточно следовать основным требованиям инструкции и соблюдать технику безопасности при работе.
Достоинства и недостатки каркасной постройки
Каждый гараж, как капитальный, так и упрощённый, должен выполнять несколько функций:
- Защита автомашины от погодных факторов и несанкционированного доступа.
- Проведение текущего ремонта, обслуживания и осмотра техники.
- Хранение комплекта инструментов и запчастей.
Каркасный гараж не уступает в функциональности капитальному кирпичному строению и при этом обойдётся намного дешевле.
Каркас здания часто изготавливается из древесины. Её легко обрабатывать, она недорога и не требует мощного фундамента. Обшивка строения выполняется из любого подходящего материала: сайдинга, профнастила, сэндвич-панелей, доски-вагонки.
Среди основных преимуществ гаража, построенного своими руками, можно выделить:
- Лёгкость возведения. При наличии основных навыков с работой может справиться даже начинающий строитель.
- Нет необходимости в привлечении мощной специализированной техники и оборудования.
- Лёгкость и прочность конструкции. Как следствие — не нужно обустраивать заглублённый фундамент.
Основной недостаток — горючесть деревянного каркаса. Чтобы избежать возгораний, он обшивается с обеих сторон негорючими материалами. В качестве утеплителя используется негорючая минеральная вата. Кроме этого, древесина пропитывается антипиренами.
Каркас можно изготавливать и из других материалов, например, металлической профилированной трубы. В качестве обшивки для такого строения используются пятимиллиметровые металлопрофильные листы. Такое здание устойчиво к возгораниям, однако каркас требует дополнительной обработки средствами от ржавчины.
Подготовка к строительству: инструменты и материалы
При выборе древесины для строительства необходимо учитывать несколько факторов:
- Брусья могут быть клеёные и цельные. Первый вариант — не деформируется со временем, не требует дополнительных опор. Однако его стоимость в разы превышает цельный.
- Использование непрофилированного бруса увеличивает расход антисептиков, антипиренов, окрасочных материалов. Также в процессе обработки могут возникнуть трещины, требующие шпатлевки. У профилированного бруса такие недостатки отсутствуют.
Следует тщательно подходить и к выбору породы древесины. Среди пригодных для строительства каркасного гаража выделяют:
- Дуб. Очень прочный и надёжный материал. Высокая прочность приводит к сложности обработки, потому распил может делать поставщик.
- Бук. Основные достоинства — практичность, лёгкость в обработке, приятные естественные оттенки.
- Ольха — недорогой материал, способный имитировать более ценные породы. Устойчив к повышенной влажности.
- Сосна — самый дешёвый и популярный строительный материал. Основные недостатки — слабая устойчивость к влаге, подверженность механическим воздействиям.
- Лиственница идеальна для регионов с высокой влажностью. Она прочна и не подвержена гниению.
Также для строительства понадобится комплект инструментов:
- Шурупы, шиферные гвозди и другие крепёжные элементы.
- Металлические уголки.
- Профнастил или другой материал для обшивки.
- Строительный отвес.
- Шуруповёрт или набор отвёрток.
- Ножовка или ножницы по металлу.
Размеры и подробный чертёж
Ширина стандартного каркасного гаража для одной машины — около четырёх метров. Длина — не менее 5,5, может доходить и до семи. Высота — 2,5–2,7 метра, без учёта кровли. Конкретные размеры выбираются с учётом особенностей конкретного автомобиля. К примеру, высота гаража для бортовой газели — не менее трёх метров. Минимальное расстояние от автомашины до стены — полметра.


На чертеже представлена конструкция, ориентированная на один автомобиль


Все габариты указываются примерно
При строительстве гаража для двух автомобилей плановая ширина строения удваивается.
Пошаговая инструкция по возведению каркасного гаража своими руками
Строительство каркасного гаража проходит в несколько этапов. На каждом соблюдается определённая технология и последовательность действий:
- Возведение фундамента.
- Сборка каркаса.
- Изготовление крыши.
- Внешняя и внутренняя обшивка стен.
- Монтаж ворот.
Разберём этапы подробнее.
Строительство фундамента
Строительство каркасного гаража начинается с тщательной подготовки территории. Площадку, выделенную под застройку, очищают от растительности и корней деревьев, немного заглубляют. После этого засыпается слой песка, по периметру будущего основания устанавливаются колышки и натягивается строительная нить.
Внешнюю сторону фундамента необходимо гидроизолировать. Для этого используется битумная мастика. Она укладывается несколькими слоями, просушивается, затем засыпается песком до поверхности грунта.
Оптимальный фундамент для каркасного гаража — монолитный. Он будет служить и черновым полом, который впоследствии можно будет обшить нужным материалом.
- По периметру будущего строения выкапывается траншея, выравнивается и утрамбовывается.
- По бокам устанавливается деревянная опалубка.
- На дно траншеи выкладывается песчано-гравийная смесь. Поверхность тщательно утрамбовывается.
- На готовую поверхность укладываются две металлические армирующие сетки. Это сделает конструкцию более прочной.
- Основание заливается бетоном. После этого фундамент должен просохнуть в течение трёх недель.


Поверхность тщательно выравнивается
Сбор каркаса
Гаражный каркас изготавливается из тщательно просушенной древесины. Для его обустройства необходимы:
- Брусья 100*100 мм, из которых оборудуются основные вертикальные стойки и балки перекрытий на потолке и полу.
- 40-миллиметровые доски, необходимые для обустройства стропильной системы.
- 20-миллиметровая доска, из которой создаётся обрешётка.
- Половые доски. Их толщина начинается от 40 мм.
Количество материалов для изготовления каркаса зависит от запланированных размеров строения.


Крыша может быть односкатной или двухскатной
«Скелет» будущего гаража возводится после высыхания фундамента. Процесс сборки происходит следующим образом:
- Фундамент гидроизолируется. Для этого используется обычный рубероид, наклеенный на битумную мастику. Эта процедура защищает деревянный каркас гаража от гниения и повышенной влажности.
- По периметру гаража укладываются брусья нижней обвязки толщиной 100*100 мм. В углах они соединяются при помощи специальных шпонок и врубок.
- На нижнюю обвязку монтируются угловые и промежуточные столбы. Они крепятся к основанию при помощи нагелей. Дополнительную прочность конструкции обеспечивают металлические уголки, закреплённые к обвязке и стойкам при помощи саморезов. При монтаже следует соблюдать расстояние между соседними стойками: оно не должно быть менее двух метров.
- Устанавливается верхняя обвязка. Брусья крепятся аналогичным способом, с помощью нагелей и металлических уголков.
- Монтируются промежуточные стойки и горизонтальные перемычки. При их креплении стоит ориентироваться на размеры утеплительных матов: это позволит избежать укладки дополнительной обрешётки. В качестве крепёжных элементов используются металлические уголки и саморезы.
Перекрытия пола изготавливаются из доски-«сороковки» и монтируются на внешнюю обвязку. Сверху укладывается напольная доска.


При укладке напольных досок следует избегать щелей и трещин
Установка ворот
Гаражные ворота можно приобрести готовые или произвести их самостоятельно, ориентируясь на размеры автомашины. Габариты конструкции необходимо знать заранее: следует оставить место для ворот в общем каркасе гаража. Стандартная ширина створок — 2,5 метра.
Остов ворот изготавливается из брусков 100*100 мм. Дополнительная жёсткость обеспечивается поперечными деревянными планками. На вертикальные стойки каркаса гаража и ворот прикручиваются петли, после чего можно навешивать дверь.
Обшивка конструкции профнастилом или подобным материалом выполняется одновременно с отделкой стен гаража и после тщательной обработки антипиренами и антисептиками.


Простейшую распашную конструкцию можно изготовить самостоятельно
Монтаж стропильной системы и крыши
Самый простой вариант крыши для каркасного гаража — односкатный. Эта конструкция достаточно проста в установке, недорога и прочна.
Стандартная односкатная крыша каркасного гаража состоит из нескольких элементов:
- Стропильная система. Это основа, к которой будут крепиться остальные элементы. На неё же приходится вся нагрузка на крышу.
- Обрешётка, закреплённая на стропильной системе. Представляет собой опорную поверхность, на которую будет устанавливаться кровельное покрытие.
- Изоляционные материалы. Их функция — защита помещения от дождя и снега, а также удержание тепла внутри гаража.
- Кровельное покрытие.
При строительстве каркаса одна из стен гаража делается выше остальных. Это требуется для обеспечения оптимального наклона крыши. Как правило, он не превышает 25 градусов.
В первую очередь оборудуется стропильная система. Для небольших гаражей, рассчитанных на одну машину, подойдёт упрощённая конструкция с горизонтальными балками, уложенными вдоль или поперёк гаражного помещения. С точки зрения экономии, наиболее целесообразным будет поперечное размещение: можно укладывать короткие брусья.
Расстояние между стропильными балками не должно превышать метра. В противном случае конструкция будет недостаточно крепкой, и в результате деформируется. После установки на каркасную основу балки фиксируются с помощью металлических уголков и шурупов.
Следующий этап — настил обрешётки. Для этого используется обрезная или необрезная доска, называемая также шалёвкой. Второй вариант считается оптимальным: материал обойдётся намного дешевле, а после окончательной отделки отличить его от аналога достаточно трудно.
Если для создания обрешётки используется шалёвка, её необходимо очистить от коры. Доски укладываются на стропильные бруски, перпендикулярно к ним, и крепятся с помощью шурупов. В процессе работы необходимо следить, чтобы не было больших щелей.
Поверх обрешётки укладывается слой гидроизоляции. Она защищает гаражное помещение от осадков. В качестве гидроизоляционного материала может использоваться рубероид либо подкровельная плёнка (например, гидробарьер).
Рубероид укладывается снизу вверх, внахлёст. Листы должны перекрывать друг друга на несколько сантиметров. Благодаря этому вода, попадающая под кровельное покрытие, будет скатываться с крыши вниз и не проникать на доски. Материал прибивается к обрешётке обычными гвоздями. Подкровельная плёнка укладывается аналогичным образом, для крепления используются нержавеющие скобы или гвозди.


Указаны основные этапы
Заключительный этап — укладка кровельного покрытия. Выбор материала достаточно велик:
- Профнастил. Прочен, устойчив к атмосферным воздействиям. Одно из основных достоинств — возможность повторного использования.
- Шифер. Прочный материал, срок службы которого достигает 40 лет. Из-за высокой стоимости его использование не всегда оправдано для отделки небольших гаражей.
- Металлочерепица — современное кровельное покрытие, чаще используемое для отделки капитальных каменных строений.
- Рулонные покрытия. Недорогие материалы, лёгкие в монтаже, прочные и надёжные. Средний срок службы рубероида — 12–15 лет, что компенсируется небольшой ценой.
Монтаж кровельного покрытия начинается с нижнего ряда. Крепление происходит с помощью шиферных гвоздей или шурупов. Листы укладываются внахлёст, в результате на одном гвозде их будет четыре. По краям прибивается ещё несколько гвоздей, чтобы исключить поднятие шифера при сильном ветре.
Утепление и обшивка
Перед проведением работ по окончательной обшивке каркасного гаража, деревянный остов необходимо обработать антисептиками и антипиренами. После этого можно приступать к монтажу.
Внешняя обшивка каркасного гаража чаще всего выполняется с помощью металлопрофиля. Это прочный и долговечный материал, устойчивый к огню и погодным факторам. Для обшивки стен подойдёт металлопрофиль, в маркировке которого присутствуют буквы С или ПС.
Профильные листы крепятся к каркасу при помощи специальных шестигранных саморезов. Работа происходит следующим образом:
- Лист металлического профиля прикладывается к угловой стойке, выравнивается по строительному отвесу.
- В нижнюю волну профнастила вкручиваются саморезы. Это необходимо для первичного закрепления материала.
- Укладывается второй лист. Нахлёст должен составлять одну волну. После этого оба изделия вместе крепятся саморезами к каркасу. На каждый квадратный метр требуется 5–6 саморезов.
- При необходимости металлический профиль можно нарезать электролобзиком или ножницами для резки металла. Не стоит использовать болгарку или аналогичные приборы: полимерная поверхность листов обгорает, что приводит к появлению коррозии и снижению полезных свойств материала.
Такие же металлопрофильные листы с маркировкой Н или ПК можно использовать в качестве кровельного покрытия. Монтаж осуществляется снизу вверх, внахлёст на волну, для крепления используются шестигранные саморезы с уплотнительными шайбами.
При желании каркасный гараж можно утеплить. Для этого можно взять каменную вату, изготовленную в виде своеобразных матов. Процесс утепления происходит поэтапно:
- На внутреннюю часть стен крепится ветрозащитная плёнка.
- В свободное пространство между стойками укладываются маты.
- Сверху утеплитель обшивается досками или листовым железом.
Стандартный утеплитель и металлопрофиль можно заменить готовыми сэндвич-панелями. Это сборные конструкции, состоящие из профилированного покрытия с одной стороны, плоского металлического листа с другой и утеплительного слоя между ними.
Видео: Строительство каркасного гаража
При использовании перечисленных правил вы сможете построить каркасный гараж собственноручно. Это не потребует больших затрат финансов, сил и времени. Достаточно заранее определиться с размерами и материалами постройки.
kakpostroit.su
Постройка каркасного гаража

Автор этого мастер-класса приобрел новый дом и столкнулся с проблемой эксплуатации гаража, который находился на территории. Во-первых, гаражные ворота оказались малы по высоте. Во-вторых, заезд был слишком узким, и развернуть машину под нужным углом не представлялось возможным.
Требовалось другое решение, поскольку оставлять дизельное авто на улице под дождем, снегом и на морозе было бы кощунством.
Автор провел работу по подготовке проекта и пришел к выводу, что гараж должен быть деревянным, каркасной конструкции. Кроме этого какая-то сумма пошла на покупку места, официальное оформление документов, так как планировалось проводить все строительные работы согласно нормам законодательства. Плюс этой конструкции в том, что сооружение каркасное, то есть временное, поэтому особого документального оформления не требует.
Кроме этого, конструкция относительно легкая, есть сравнить с другими возможными вариантами. А ведь это большой плюс экономии по части строительства фундамента.
Сразу определитесь с пиломатериалами, которые вы планируете использовать, так как это реальный шанс сэкономить. Вы можете использовать материалы б/у, разобрать старый сарай, сюда же пойдут более-менее ровные жерди с плоской поверхностью, отобранной на станке. Такие жерди можно использовать в качестве стропил и вертикальных стоек стен. Покупка новых пиломатериалов превращает конструкцию из экономичной в весьма дорогостоящую. Учитывайте это.
Материалы:
— брус подходящего сечения;
— доски для обшивки стен;
— листовой материал для подшивания потолка;
— деревянные рейки;
— утеплитель для стен и потолка;
— металлическая кровля;
— напольные доски;
— бетон для заливки фундамента и стяжки;
— профнастил и петли для ворот;
— уголки, швеллер, металлическая труба;
— расходные материалы: гвозди, болты, шурупы;
— отработка и краска;
— пленочная гидроизоляция;
— рубероид.
Инструменты:
— болгарка;
— циркулярка;
— электролобзик;
— бетономешалка;
— шуруповерт;
— малярные принадлежности.
Шаг первый: постройка фундамента
Стяжку под гараж выполняли два человека. Одному справиться можно, однако это займет гораздо больше времени. Что касается расходов на подготовку площадки и доставку материалов, то на это потрачено в итоге около 250 $. Сюда входит вывоз мусора, а также покупка и доставка цемента, щебня, песка и приобретение арматурной сетки для усиления того участка стяжки, по которому машина заезжает в гараж. Кроме этого автор приобрел место и металлический гараж, что обошлось ему еще в 750 $.
Для опоры нижних брусьев по периметру стяжки автор поместил арматуру, к которой приварил металлический уголок на 70 мм и швеллер впереди. Если вы проживаете в местности, где уровень осадков не заставляет вас пугаться в осенне-зимний период, стяжки в уровень пола будет достаточно. В другом случае периметр фундамента можно немного нарастить и использовать для установки основного каркаса. По желанию бетонный фундамент можно загрунтовать специальным составом, который в некоторой степени предохраняет его от намокания. Однако в большинстве случаев при постройке гаража такие расходы будут только лишними.
В процессе заливки следите за тем, чтобы стороны прямоугольного фундамента оставались равны. Проверяйте диагонали и длину сторон, пока не убедитесь, что здесь все гладко. Вы можете забить ориентиры и натянуть шнур для облегчения задачи.


Шаг второй: установка каркаса гаража
В качестве гидроизоляции на основание под брус уложен рубероид Обычно этого достаточно, если речь идет о мастерских, гаражах и подсобных помещениях. Но для верности все нижние брусья обработаны отработкой. В данном случае, отработка — самый доступный и дешевый состав для защиты древесины от гниения.
Нижний опорный брус имеет сечение 120 х 120 мм. 100 мм — это предел, ниже которого опускаться не стоит. Однако в этом случае гараж планировался внушительных размеров — 5,7 на 3,9 м. Для такой площади размеры бруса оказался оптимальным. Для усиления конструкции и более надежной фиксации каркаса нижняя обвязка прикручена к фундаменту крупными болтами, которые заходят в бетон на 10 см.
Вертикальные стойки каркасной конструкции крепились автором в полдерева. Для этого в нижней обвязки был выбран паз. Сами стойки крепились на шкантах, которые автор нарезал из специально приобретенного с этой целью букового стержня диаметром 25 мм. Длина шкантов при этом — 20 — 25 мм. Отверстия под шканты автор сверлил с помощью перьевого сверла и обычной бытовой дрели. Для удобства соединения и их защиты в отверстия заливалось масло.
Для изготовления угловых и центральных стоек-опор автор использовал брус сечением 100 х 100 мм. Для экономии денег все прочие стойки были тоньше — в пределах 50 х 100 мм. На схеме красным цветом обозначены ключевые стойки, а синим — вспомогательные. В горизонтальных элементах каркаса внизу и вверху прорезаны пазы глубиной в 15 мм с помощью электролобзика. Это пазы под вертикальные опоры, закрепленные шкантами (см. фото).
После того, как основание каркаса готово, его следует укрепить раскосами, а также установить перемычки и коробки под окна, если такие планируются. Тщательно вымеряйте вертикали под установку въездных гаражных ворот.


Шаг третий: установка крыши
Прежде чем вы приступите к обшивке стен, следует оборудовать крышу. В этом случае все последующие строительные работы вы сможете проводить, не оглядываясь на погодные условия.
Для изготовления стропил и балок перекрытия автор использовал брус сечением 60 х 120 мм. Длина бруса составляла 6 метров, так что скат крыши получился по 3 м каждый. Если есть возможность, то фермы можно собирать на земле, замерять все углы, диагонали и после этого устанавливать на крыше. Однако автор не осилил эту задачу физически, так что пришлось все делать прямо на крыше. Но и в этом случае вам понадобится помощник. Тем более, если предшествующего опыта строительства крыш у вас нет.
Сверху набейте обрешетку под кровлю. Автор использовал металлические листы для кровли. Это один из самых доступных, практичных и оптимальных материалов по соотношению цены и качества. Тем более, с ним удобно работать, а кровельные работы можно проводить в одиночку, если приноровиться, как следует. Листы крепятся саморезами по металлу. Используйте резиновые прокладки, чтобы вода не попадала в крепежные отверстия.
На обрешетку автор настелил пленочную гидроизоляцию. Это точно не будет лишним. На этом обустройство крыши можно закончить. Позже вы можете утеплить ее и подбить досками или любыми доступными листовыми материалами типа ОСБ или даже ДВП.


Шаг четвертый: облицовка стен, пол и потолок
Для обшивки стен гаража автор использовал обрезную доску. Он не стал отбирать четверти самостоятельно, поскольку без станка, с помощью одних только бытовых инструментов это заняло бы слишком много времени. Вместо этого он отдал доски в столярную мастерскую. Подготовленной таким образом доской-шалевкой автор облицевал наружные стены гаража. Для крепления он использовал гвозди 70 мм. Однако советует брать для этого оцинкованные гвозди либо саморезы.
В качестве напольного покрытия автор выбрал доски толщиной 30 мм. При условии качественной стяжки гидроизоляция под деревянное покрытие может не применяться, тем более, что речь идет о гараже.
Автор также обустроил и утеплил потолок. Используйте плиты из стекловаты или стекловату в рулонах. Для утепления потолка отлично подойдет пенополистирол. Он долговечен и практичен, является одним из лучших из доступных изоляторов.
Автор использовал старые древесностружечные плиты для утепления стен гаража изнутри. Из них же он изготовил внутренние оконные рамы.
Шаг пятый: изготовление и установка гаражных ворот
Поскольку была поставлена задача сэкономить как можно больше денег, было решено изготовить гаражные ворота самостоятельно, да еще и из того, что оказалось под рукой. А это профнастил, которого было меньше, чем того требовалось. Изначально на ворота планировалось истратить 7 м2 листового материала. Профнастила было всего 6 м2. После проведенных подсчетов автор решил устанавливать листы горизонтально. Не так практично, зато без дополнительных трат на материалы.
Для каркаса ворот и изготовления перемычек автор приобрел трубу 40 х 20 и 20 х 20, а сварочные работы проводил самостоятельно. Диагонали каркаса вымерялись, и только после этого он приварил перемычки. Все сварочные швы следует зачистить и подготовить раму к покраске.
Автор использовал простые петли. Он устанавливал петлю на угольник и приваривал к ней пластину, чтобы соблюсти ровный угол. Метод себя оправдал. Чтобы пластина петель зашла заподлицо, автор вырезал пазы на вертикальных стойках. После этого осталось усилить конструкцию косынками и установить замки.
В итоге, гараж 5,7 х 3,9 м при высоте стен в 2,5 м обошелся автору в 1200 $ в режиме экономии, с учетом покупки места и приобретения металлического гаража.
Источник
Доставка новых самоделок на почтуПолучайте на почту подборку новых самоделок. Никакого спама, только полезные идеи!
*Заполняя форму вы соглашаетесь на обработку персональных данных
Становитесь автором сайта, публикуйте собственные статьи, описания самоделок с оплатой за текст. Подробнее здесь.usamodelkina.ru
Каркасный гараж своими руками — инструкция по сборке
Многие люди считают, что гараж должен быть своего рода крепостью, возведенной из привычных, но дорогих строительных материалов. В наше время имеется возможность выбрать менее затратный способ возведения сооружений – это каркасная технология строительства. Если придерживаться всех предписаний, то гараж получится не только теплым, но и прочным. Несмотря на кажущуюся хлипкость строения, он имеет ряд преимуществ:
- Ввиду небольшого веса строения, отпадает необходимость в возведении мощного фундамента, который можно сделать на почве любого типа.
- При малой толщине стен они отлично держат тепло внутри гаража, поэтому не придется тратить много средств на обогрев.
- Не нужно штукатурить. Кроме того, как для внешней, так и для внутренней отделки в продаже имеется множество сравнительно недорогих материалов.
- Самая грязная работа – монтаж фундамента. Все остальные работы не приводят к загрязнению участка.
- От начала строительства до его завершения пройдет максимум 2 месяца, и половина этого срока отводится на застывание бетонного фундамента.
А можно ли построить крепкий каркасный гараж своими руками? Конечно же, даже в одиночку, что не всегда удобно, но вполне реализуемо. Давайте вместе рассмотрим все этапы выполнения работ.
Из чего сделать скелет?
Поскольку речь идет о каркасном строительстве, вполне понятно, что необходимо тщательно продумать, из какого материала его сделать. Для этого может быть использовано дерево или металл. В каждом случае работы по изготовлению скелета буду отличаться, поэтому остановимся на выборе материала более подробно.
Брус
Рассмотрим преимущества и недостатки деревянного каркаса.
Плюсы
- Каркасник обойдется несколько дешевле.
- Если нет электричества, то все работы можно выполнить обыкновенным столярным инструментом. Этот вариант крайне трудоемок, да и времени уйдет больше.
Минусы
К недостаткам можно отнести:
- Высокий уровень пожарной опасности, в сравнении с другими материалами (исключением является лишь строение из бревен).
- Древесиной любят полакомиться разные насекомые и жучки.
- Материал не переносит длительного воздействия влаги.
Многие из перечисленных недостатков не так уж и существенны при соответствующей обработке материала. Что касается пожароопасности, то, как правило, в гараже есть много других предметов и жидкостей, которые легко воспламеняются, так что конструктивные особенности помещения не играют большой роли.
Металл
В этом случае при изготовлении скелета может быть использован:
- Металлопрофиль или ЛСТК.
- Профильная труба.
- Металлический уголок.
Стоит также остановиться на особенностях более детально.
- Сам по себе материал не горюч, но после пожара становится непригодным для дальнейшей эксплуатации.
- Любую конструкцию можно сделать разборной, но при работе с деталями из толстого металла лучше воспользоваться электросваркой.
- Каркас подвержен коррозии.
На этом этапе вы должны четко определиться с выбором — придется выбирать подходящий проект.
Как быть с проектом?
Многие люди считают, что при строительстве несложных конструкций можно обойтись без бумажной волокиты, но в нашем случае возводиться будет не маленькое временное сооружение, а гараж, который должен выдержать большую массу снега на крыше, и не перекоситься под тяжестью ворот. Поэтому лучше не рисковать, а воспользоваться готовым проектом или сделать свой. В таком случае вам будет видно, сколько и какого материала нужно приобрести.
Мы предлагаем вашему вниманию проект гаража, но если по каким-то причинам он не подходит, то его можно переделать, внеся свои коррективы.
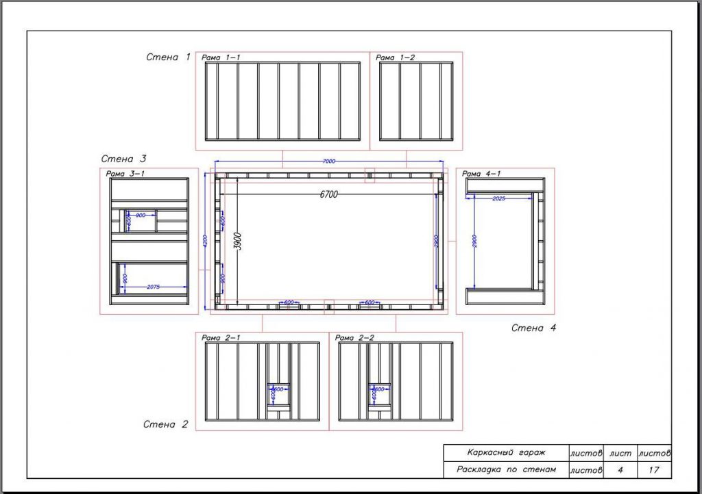
Схема
Лист 1
Лист 2
Лист 3
Лист 4
Лист 5
Лист 6
Лист 8
Лист 9
Лист 10
Лист 11
Лист 12
Лист 13
Лист 14
Лист 15
Лист 16
Лист 17
Подготовительные работы
Итак, с проектом разобрались, материалы закупили, теперь приступим к подготовительным работам.
Площадка под строительство
Чаще всего место, где будет построен гараж, определено заранее, но при детальном рассмотрении оно может оказаться неудобным, так как расположено на склоне. В некоторых случаях проще начать строительство в другом месте, чем вывозить тонны земли, привлекая для этого разнообразную технику.
Окончательно определившись с участком, обозначьте габариты гаража колышками. Еще раз проверьте, будет ли удобным въезд.
Какой будет фундамент?
В зависимости от выбранного типа фундамента осуществляют подготовку участка.
- При заливке мелкозаглубленного ленточного фундамента снимается часть грунта в тех местах, где он будет проходить.
- Под монолитную плиту производится выемка грунта по всему периметру на глубину не менее 50 см.
- В случае изготовления столбчатого фундамента вырываются ямы размером 50×50 см до твердого основания.
- Если принято решение сделать свайно-винтовой фундамент, то грунт не трогаем вовсе.
Приступим к изготовлению фундамента
Мы рассмотрим процесс изготовления самого дорогого, но наиболее практичного вида фундамента – это заливка монолитной плиты. Такое основание не продавят колеса автомобиля, да и при изготовлении смотровой ямы не возникнет проблем. Вы же можете выбрать наиболее подходящий или менее дорогой тип фундамента, воспользовавшись рекомендациями из подборок видео на соответствующую тему.
Тип фундамента:
При сооружении плитного фундамента порядок действий будет таким:
С помощью трактора выроем котлован | Производится выборка грунта на глубину 50 см. |
В самой нижней точке его глубина должна быть не менее 50 см | Дно основательно трамбуется. |
Толстый слой песка предотвратит деформацию плиты | Засыпается песком настолько, чтобы до верха котлована он не доходил 20 см. |
Вибротрамбовка очень облегчит труд | Песок тоже нужно хорошо утрамбовать. |
Геотекстиль не даст песку смешаться с щебнем | Поверх укладывается геотекстиль. |
Слой щебня тоже нужно утрамбовать | Следующим слоем пирога будет щебень средней фракции, которым заполняется котлован до краев. Его тоже нужно хорошо утрамбовать. |
Лучше всего сделать опалубку по высоте заливки плит | Теперь дело за опалубкой. Лучше всего, если она будет выставлена вровень с уровнем заливки плиты – так меньше вероятность допустить перепады. Что касается толщины бетонного слоя, то 20 см вполне будет достаточно для легкового автомобиля. Для грузовика лучше увеличить толщину до 30 см. |
Конструкция должна быть жесткой | Выставив опалубку необходимо обеспечить жесткость конструкции, закрепив подпорки со всех сторон. Лучше всего, если для опалубки будет использоваться толстая доска. Если это не так, то подпорок понадобится больше. |
Позаботимся о гидроизоляции | Поверх щебня с нахлестом на опалубку укладывается гидроизоляция, в качестве которой используются рулонные материалы на битумной основе или толстая полиэтиленовая пленка. |
Устанавливаем первый слой арматуры | Теперь устанавливается первый слой арматуры Ø10‒14 мм. Он не должен касаться дна, поэтому необходимо обеспечить необходимый зазор. Для этой цели не нужно использовать кирпичи и другие предметы, так как они могут проткнуть гидроизоляцию, а некоторые вовсе не пригодны для укладки в стяжку. |
Пластиковые фиксаторы для арматуры | Воспользуйтесь пластиковыми фиксаторами для арматуры. |
Установлен и закреплен второй ряд арматуры | Затем укладывается еще слой арматуры. |
При заливке бетона его нужно уплотнить | Залив бетон, нужно его провибрировать (процесс показан на фото), стараясь при этом не касаться каркаса и опалубки. Штыкование палкой утомительно и малоэффективно. |
![]() | Края опалубки послужили уровнем заливки и выравнивания бетонной подушки. |
В любое время года плита нуждается в защите | Теперь придется ждать почти целый месяц, пока бетон не наберет необходимую прочность. В летний период подушку нужно периодически поливать водой и накрывать материалом, предотвращающим быстрое испарение влаги. Также фундамент нуждается в защите, если сделан осенью и оставлен до весны. |
Возведение каркаса
Поскольку речь идет о деревянной конструкции, то все детали необходимо пропитать антисептическим составом. Нам потребуются брусья и доски таких размеров:
- Для нижней части гаража используем брусья 100×40 или 100×50 мм.
- Размер угловых брусьев и стоек – 100×100 мм.
- Стропила и дополнительные стойки – 100×50 мм.
- Расстояние между стойками – 110–120 мм.
- Оптимальна длина досок – 3 м. Можно приобрести шестиметровые заготовки и разрезать пополам.
- Для крыши будем использовать доски 100×25 мм.
- Обрешетку лучше делать из брусков 30×30 или 40×40 мм.
На плите начнем сборку первой стены | Итак, фундамент готов, можно приступать к возведению каркаса. Его сборку начнем на плоскости, а потом поднимем, установим и закрепим. Начнем с задней стенки. Для придания раме прочности в углах следует установить подкосы. |
В передней стенке будут установлены ворта | Следующей монтируется усиленная часть каркаса, в которой будут установлены ворота. |
Установка боковины | Затем зафиксируем противоположную стену от двери. |
Сборка последней части | Приступим к сборке передней стенки. |
Теперь можно всё надежно скрепить | Теперь ее можно установить и закрепить. Из металлического уголка (65 мм) сделаем наружную и внутреннюю рамы ворот и зафиксируем их друг с другом металлическими полосками. |
Примерка изготовленной стропил | Приступим к изготовлению стропил. Сделав первую секцию, можно проверить, насколько она точно изготовлена. |
Монтаж стропил | Убедившись, что всё сделано правильно, сделаем остальные стропила и установим их. |
Необходимо уложить пароизоляцию | Закрепляем пароизоляцию и прибиваем обрешетку. |
Для обшивки каркаса используем ОСБ | В качестве кровельного материала мы использовали ондулин. |
![]() | Каркас обшили ОСБ. |
Для такой конструкции идеально подходят металлопластиковые окна | Вставили металлопластиковые окна. Рамы ворот сварили из профильной трубы 40×25 мм и, соблюдая технику пожарной безопасности, приварили к раме. |
На этом работы закончены | Вот такой получился гараж. |
Виды ворот | Распашные ворота более просты в изготовлении, но не очень удобны. Были случаи, когда сильный порыв ветра срывал створку с фиксирующего устройства, что приводило к повреждению кузова автомобиля. Поэтому сейчас часто можно встретить различные устройства, закрывающие въезд. |
Устройство гаража с мансардой
Если габариты строения позволяют, то чердачное помещение можно переоборудовать под мансарду. Конечно, лучше всего было бы предусмотреть мансарду еще в стадии проектирования, но так получается далеко не всегда, потому что потребность в дополнительной полезной площади возникает в процессе эксплуатации помещения.
Процесс переоборудования
Один из моментов, который придется учесть, — это размещение лестницы и вырезание для прохода части потолка так, чтобы не нарушить его несущую способность, что не всегда возможно сделать. Если так получается и в вашем случае, то к имеющемуся строению можно сделать пристройку, через которую будете подниматься в жилое помещение.
В некоторых случаях в помещение на втором этаже проникают газы от работающего двигателя. Особо это может ощущаться при запуске холодного двигателя (особенно дизельного). Поэтому в самом гараже должна быть предусмотрена вентиляция. Необходимо также установить дверь в жилое помещение.
Всё учтено при планировании
Если изготовление мансарды запланировано заранее, то в проекте уже предусмотрено, где и как будет установлена лестница. Для того чтобы максимально использовать имеющуюся площадь, крышу делают ломаной.
Как утеплять?
Жилое помещение должно быть теплым, а если гараж неутепленный, то нужно будет заняться не только стенами мансарды, но и полом. Вначале поговорим о стенах, обсудив основные правила утепления.
Натянутая капроновая нить напоминает паутину | Специалисты настоятельно рекомендуют использовать капроновую нить, так как она спасет утеплитель от провисания и сползания. Из нити делается своеобразная паутина, которая натягивается и надежно закрепляется. При этом важно помнить, что утепляется не весь чердак, а только жилое помещение. |
Капроновая нить надежно удерживает минвату | При работе со стенами мансарды сначала укладывается утеплитель, а затем натягивается нить. То же самое делается и с потолком, если потом не будет возможности уложить утеплитель сверху. Важно учесть, что минимальный слой укладываемого утеплителя не должен быть менее 200 мм. В местности с суровыми зимами нужно увеличить толщину утеплителя до 300 мм. |
Позаботимся о том, чтобы сквозь утеплитель не проходил холодный воздух | При укладке утеплителя важно позаботиться о том, чтобы не осталось мостиков холода. Что касается минваты, то она может в себе накапливать воду, поэтому мнения о целесообразности ее применения расходятся. Многие люди предпочитают пользоваться пеноплексом, так как он не гигроскопичен. |
Для этого следующий ряд утеплителя должен перекрывать стыки | Для этого следующий ряд утеплителя укладывается таким образом, чтобы он перекрывал швы уложенного материала. |
Пароизоляцию проклеим серебряным армированным скотчем | На стыках обязательно нужно проклеить пароизоляцию. Для этого лучше всего использовать серебряный армированный скотч. Он не только прочный, но и хорошо клеится. |
При проклеивании паризоляции на стенах, обратный нахлест не нужен | На мансарде пароизоляция монтируется обратным нахлестом, поэтому ее монтаж выполняется сверху вниз. Обратный нахлест означает, что следующее полотно пароизоляции ляжет на верхнее полотно. Тем самым пары, поднимающиеся снизу помещения, пойдут не в стыки, а к верху кровли и будут выветрены благодаря вентиляции. |
Благодаря контррейкам обеспечивается вентиляция под обшивкой | После монтажа утеплителя со стороны помещения (так же, как и снаружи) должны быть прибиты контррейки. |
Обшивочные доски в качестве конрреек | На потолке роль контррейки и обрешетки будут выполнять доски толщиной 25 мм. Такую двойную функцию доска может выполнять только на ровном потолке. |
Так выглядит кровельный пирог | Представить всё в деталях поможет схема кровельного пирога крыши мансарды. |
Видео: нюансы и технология утепления мансардных крыш
Что касается способов утепления пола, то единственным ограничением в выборе материала может быть его большой вес.
Видео: способы утепления пола мансарды
Можно ли сделать гараж на две машины?
Если в семье 2 автомобиля, то каркас можно сделать таким, что в гараже поместятся даже 4 машины. В этом случае придется рассчитывать габариты и несущую способность используемого материала, пусть то будет дерево или металл. В следующем ролике демонстрируется процесс возведения такого строения.
Видео: строительство каркасного гаража на 2 автомобиля
Строительство каркасника обходится дешевле, но такое строение не назовешь бюджетным вариантом. При соблюдении технологии возведения такого строения, оно прослужит хозяину и его автомобилю не один десяток лет.
kakpravilnosdelat.ru


С помощью трактора выроем котлован
В самой нижней точке его глубина должна быть не менее 50 см
Толстый слой песка предотвратит деформацию плиты
Вибротрамбовка очень облегчит труд
Геотекстиль не даст песку смешаться с щебнем
Слой щебня тоже нужно утрамбовать
Лучше всего сделать опалубку по высоте заливки плит
Конструкция должна быть жесткой
Позаботимся о гидроизоляции
Устанавливаем первый слой арматуры
Пластиковые фиксаторы для арматуры
Установлен и закреплен второй ряд арматуры
При заливке бетона его нужно уплотнить
В любое время года плита нуждается в защите
На плите начнем сборку первой стены
В передней стенке будут установлены ворта
Установка боковины
Сборка последней части
Теперь можно всё надежно скрепить
Примерка изготовленной стропил
Монтаж стропил
Необходимо уложить пароизоляцию
Для обшивки каркаса используем ОСБ
Для такой конструкции идеально подходят металлопластиковые окна
На этом работы закончены
Виды ворот
Натянутая капроновая нить напоминает паутину
Капроновая нить надежно удерживает минвату
Позаботимся о том, чтобы сквозь утеплитель не проходил холодный воздух
Для этого следующий ряд утеплителя должен перекрывать стыки
Пароизоляцию проклеим серебряным армированным скотчем
При проклеивании паризоляции на стенах, обратный нахлест не нужен
Благодаря контррейкам обеспечивается вентиляция под обшивкой
Обшивочные доски в качестве конрреек
Так выглядит кровельный пирог